哈尔滨装修网

0371-58610011

装饰公司

  • 装饰公司
  • 家居建材
  • 设计师
  • 工长工人
  • 效果图
  • 搜文章
  • 搜产品
  • 搜视频

一个美剧迷的装修日记-96平米小三房验收篇

发布日期:2017-05-20

拿房装修有一段时间了,工作原因一直迟迟没有开始写装修日记,这段时间,趁有空赶紧先把开头写了。。

今天先从验房说起:

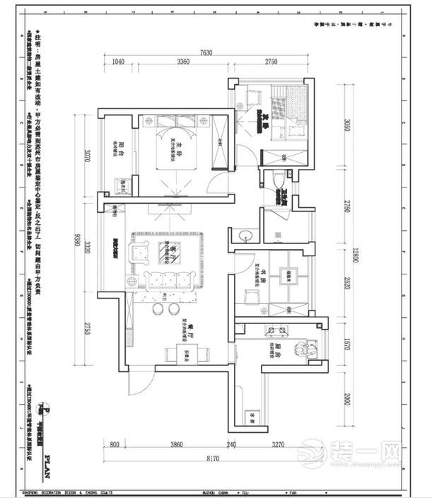
户型图(82/93的小三房)

96平米小三房户型图

户型设计中规中矩吧,主卧客厅朝南,阳台较多,厨卫空间有点小。

各个空间的验收

96平米小三房验收效果图

96平米小三房验收效果图

96平米小三房验收效果图

96平米小三房验收效果图

96平米小三房验收效果图

96平米小三房验收效果图

96平米小三房验收效果图

96平米小三房验收效果图

96平米小三房验收效果图

整体房间都齐了,基本有几个问题。客餐厅设计,厨房阳台如何利用,冰箱、洗衣机、晾衣区设置在哪

96平米小三房户型图

本人是个美剧迷,比较喜欢欧美风的家装格局,比较有温馨感,因为平时工作忙没太多时间投入在装修上,所以直接找了装修公司全包,设计大致这样,简美风格,客餐厅用吧台隔出空间,书房做榻榻米。

开贴先这样啦,后面接着更新几个装修节点。

上述内容为转载或编者观点,不代表装一网意见,不承担任何法律责任。如侵权请联系删除。
如何挑选装修公司,大数据来帮你!

免费设计在线报价

结合当地市场,大数据实时分析计算

手机版

小程序

公众号